新闻资讯
联系我们
:广州市黄埔区万腾街10号
: 020-32399500
www.dglikvalve.com
leovalve@126.com
您当前位置: 新闻资讯行业动态
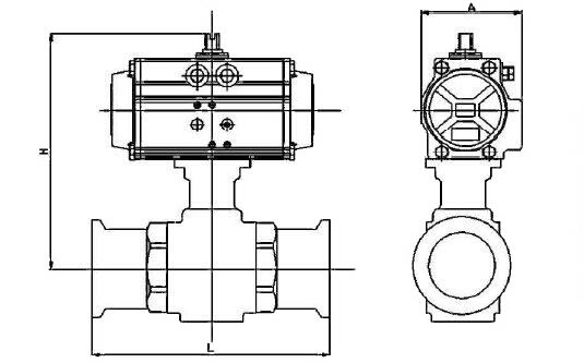
进口气动卡箍球阀特点和结构图
发布时间:2021-6-26

进口气动卡箍球阀(食品级球阀)是一种应用于食品加工或制药类等领域的的卫生级球阀,与管道采用卡箍的连接方式,不仅容易安装维修,也可很轻便的拆卸下来清洗阀腔及管道卫生。气动食品级球阀经过精密的检验流程和严格的品质管理,球体表面及流道采用精密抛光和除菌处理,光滑表面确保清洁,无介质积存区域,不会产生潜在的污染。广泛应用于如食品、制药、化妆品、洁净蒸汽、酒类、饮料、水处理工程等领域。


气动卡箍球阀结构图

                                              


                                                                           

气动卡箍球阀特点:

1、气动食品级卡箍球阀的连接方式特别简单,无需特殊的专业技能,一般只要经过简单的培训即可操作。

2、气动卡箍球阀操作方便,可快速和拆卸安装,所需要的空间变小,这为日后的维修带来了许多方便条件。

3、气动食品级球阀维修和更换时,只需松开两片卡箍即可,任意转动、修改一段管道,不需破坏周围墙体,减少了维修时间和维修费用。


气动卡箍球阀应用:

气动卡箍球阀是一种符合卫生标准的食品级球阀,可用于管道介质的切断和调节流量使用,应用范围包括食品,饮料加工,以及制药和化学工业等领域。气动卡箍球阀完全贯通的阀门腔设计不会产生任何流体阻力。因此使得气动食品级球阀成为用来处理黏性或含有颗粒物的流体的*选择。


更多进口气动卡箍球阀资讯点击:http://www.dglikvalve.com/



020-32399500
qrCode